383 Clinton Ave

Cedarhurst NY 11516
 

Service Beyond Expectations

Stunning luxury home located at 383 Clinton Ave in the heart of Cedarhurst, one of the most desirable neighborhoods in the Five Towns.
This exceptional residence offers approximately
6,300 sq ft of total living space,
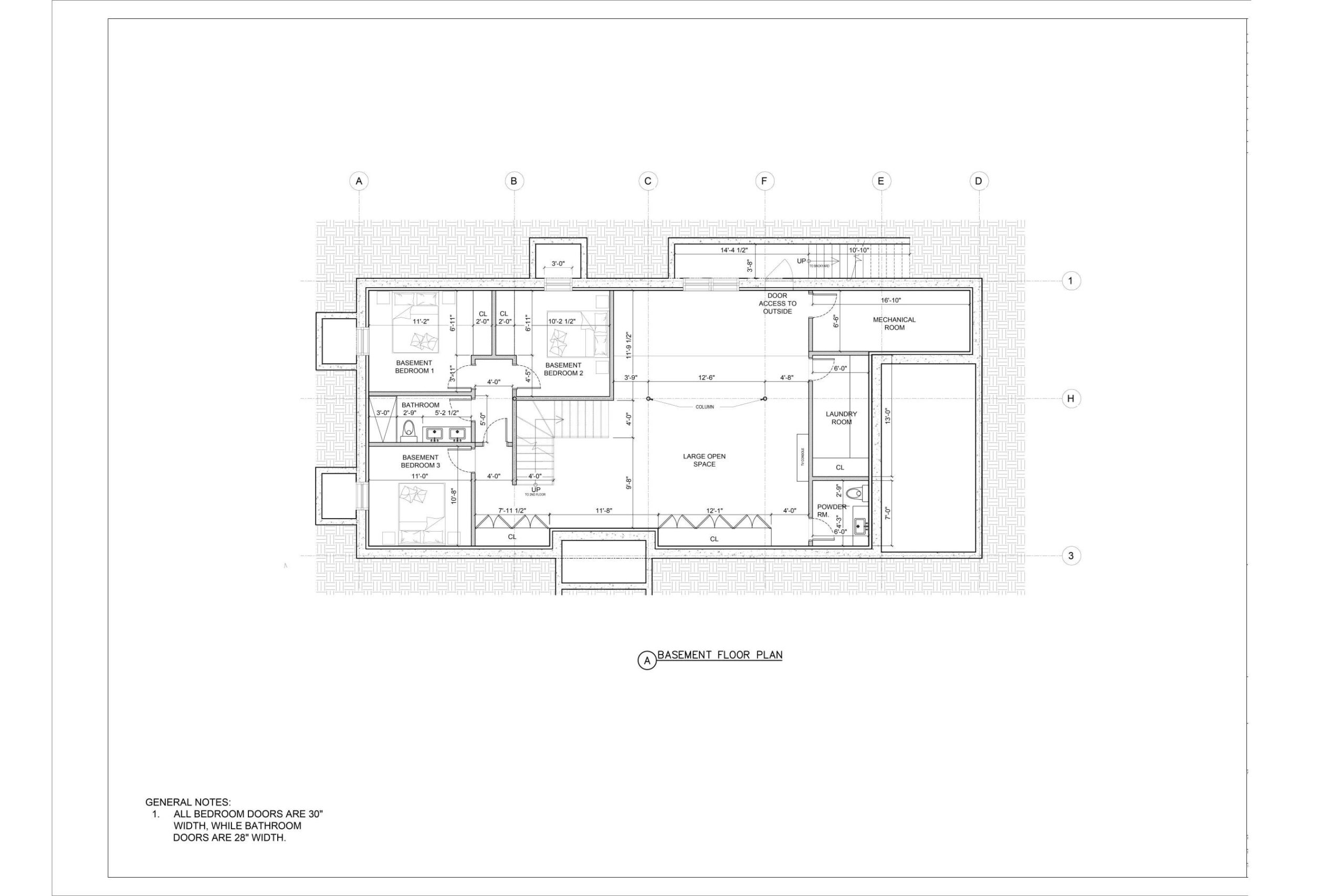
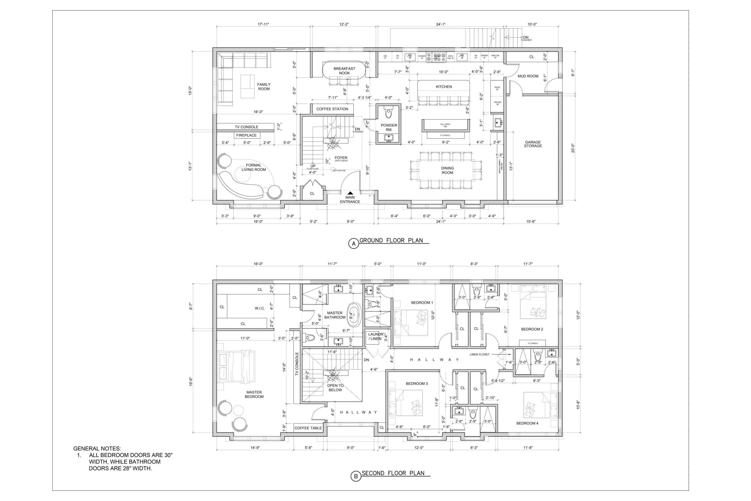
8 spacious bedrooms 
8 bathrooms
,
designed for comfort and modern family living.
The home also includes a large private backyard and en-suite bathrooms for every upstairs bedroom, providing privacy and luxury throughout.

Prime Location

Located in Cedarhurst, part of the desirable Five Towns, close to shopping, restaurants, and community amenities.

Spacious Living

Approximately 6,300 sq ft with 8 bedrooms and 8 bathrooms, offering generous space for comfortable family living and entertaining.

Modern Design

Thoughtfully designed home with spacious layouts, quality finishes, and bright living spaces.

Great Schools Nearby

Close to respected schools including Hebrew Academy of the Five Towns and Rockaway and the Lawrence Union Free School District.

Reasons to Buy This Home

Located in the heart of Cedarhurst, within the highly desirable Five Towns community, this home offers convenient access to shopping, restaurants, parks, and houses of worship. Residents enjoy being just minutes from the popular shopping district along Central Avenue Cedarhurst, making everyday living comfortable and convenient while still enjoying a quiet residential neighborhood.

 

With approximately 6,300 sq ft of total living space, 8 bedrooms, and 8 bathrooms, this home offers exceptional space for large families, entertaining guests, and comfortable everyday living. The generous layout allows for multiple living areas, private bedrooms, and functional spaces designed for modern family lifestyles.

 

Built with quality craftsmanship and modern design, this new construction home in Cedarhurst features contemporary finishes, thoughtful layouts, and elegant living spaces designed for today’s lifestyle. The home combines luxury, comfort, and functionality with high-end construction standards.

 

The property is located near excellent educational options including Hebrew Academy of the Five Towns and Rockaway and other respected schools in the area. Residents also enjoy quick access to the vibrant shopping district along Central Avenue Cedarhurst, offering boutiques, kosher restaurants, supermarkets, and everyday conveniences just minutes away.

 
 
 

Your dream home is just a click away.
Contact us now and our representative will get back to you as soon as possible!

A little about the house and the area

Welcome to 383 Clinton Ave, a beautiful new luxury home in Cedarhurst located in the highly sought-after Five Towns community on Long Island. Offering approximately 6,300 square feet of total living space, this spacious residence combines modern design, high-end finishes, and a thoughtful layout ideal for comfortable family living and entertaining.

The home features 8 bedrooms and 8 bathrooms, creating plenty of space for large families and guests. A standout feature of the property is that every upstairs bedroom includes its own private en-suite bathroom, offering comfort, privacy, and convenience. The home also boasts a large backyard, perfect for outdoor gatherings, relaxing weekends, and family activities.

Located on a quiet residential street, this property is close to many of the area’s most respected schools. Families living in the neighborhood have access to well-known Jewish schools such as Hebrew Academy of the Five Towns and Rockaway, along with quality public schools within the Lawrence Union Free School District.

Residents also enjoy easy access to the vibrant shopping and dining district along Central Avenue Cedarhurst, where you can find a variety of boutiques, kosher restaurants, supermarkets, cafes, and everyday conveniences. With convenient transportation options and quick access to New York City, the location offers the perfect combination of suburban comfort and city accessibility.

If you are searching for a luxury home for sale in Cedarhurst NY, a spacious property in the Five Towns, or a large family home near Jewish schools, shopping, and community life, 383 Clinton Ave is a rare opportunity in one of Long Island’s most desirable residential communities.

Bluestone Development is a premier custom home builder serving Long Island and the New York area, specializing in high-quality residential construction and luxury custom homes.

Contact Info

Reach out

Follow Our Social Media

Scroll to Top